new forest car sales, ringwood road, southampton

3 bedrooms | Guide Price £495,000 | Freehold

Shirley

023 8078 0787

Request Viewing Save Print

Council Tax Band: TBC


This opportunity is for sale by public auction at The Brooks Suite, Silverlake Stadium, Stoneham Lane, Eastliegh, SO50 9HT.
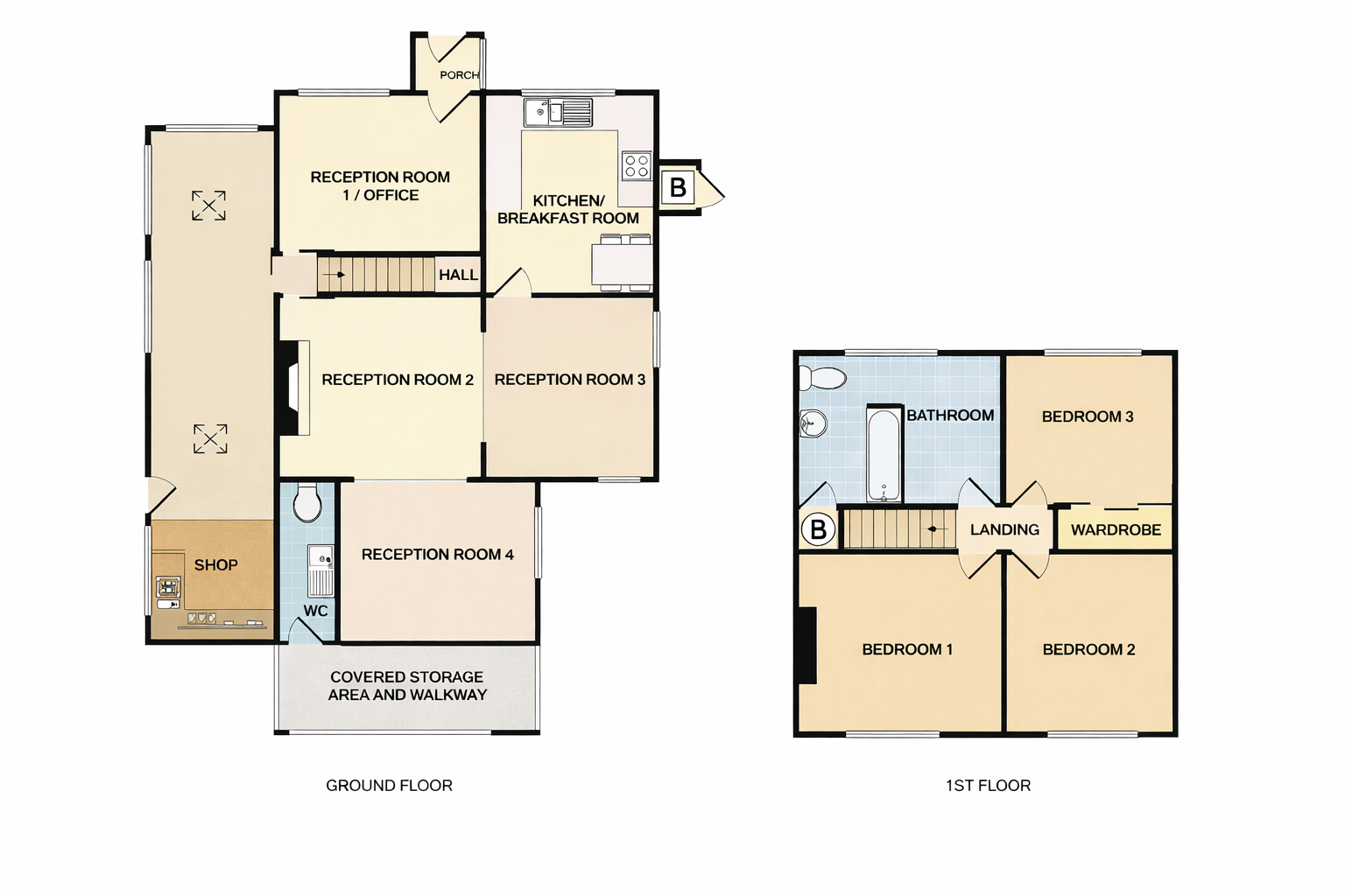
The property itself is desribed below with measurements and the and floorplan opposite and forms part of the 0.28 Acre site
that has permission to operate as a car sales business.

Hall

Sitting Room: 11'8 x 9'2:
Radiator, double glazed window, opening to:

Inner hall : Stairs to 1st floor, opening to:

Lounge: 20'6 x 11'5 max:
Feature fireplace , radiator, u...

Read more


If you’ve got a must-have list for your next home, tell us what’s on it! We can help you find your dream home.

Register with us

From arranging our first viewing; to exchange & completion, Rhiannon has been outstanding. As first time buyers; we had plenty of questions along the way, but no topic was too much for Rhiannon to explain. She went above and beyond in every aspect! Thank you from the bottom of our hearts, for making this experience so memorable for us - we are in love with our new home 🏡 Paige & Charlotte 🐾

Paige & Charlotte – Purchaser

Read our testimonials

Our Offices

Bitterne:

023 8042 2600
bitterne@fieldpalmer.com

Shirley:

023 8078 0787
shirley@fieldpalmer.com

Woolston:

023 8039 3255
woolston@fieldpalmer.com

Letting & Property Management:

023 8071 0402
lettings@fieldpalmer.com

Block & Estate Management:

023 8023 7577
blockmanagement@fieldpalmer.com

View Office Map

Terms & Conditions | Privacy Policy | Client Money Protection Certificate | Click here for a full list of our lettings fees | Complaints Procedures | Site Map | Website by fruitful studio

©2026 All rights reserved | Field Palmer is a Trading Name of Hull Hampshire Estate Services Limited. Registered in England No 1027967, Registered Office: 70 High Street, Fareham, PO16 7BB