Welcome to Browning Avenue! Now, this is a bungalow that should not be missed! It is positioned on an enviable plot, with an impressive rear garden, block paved driveway to the front providing off-road parking, an additional side drive with access to the brick-built detached garage. Inside, you are welcomed by the porch that leads into the spacious entrance hall with doors leading to the primary rooms. The accommodation is versatile, and this home could be utilised as a three-bedroom property or a two-bedroom with an...
Read more
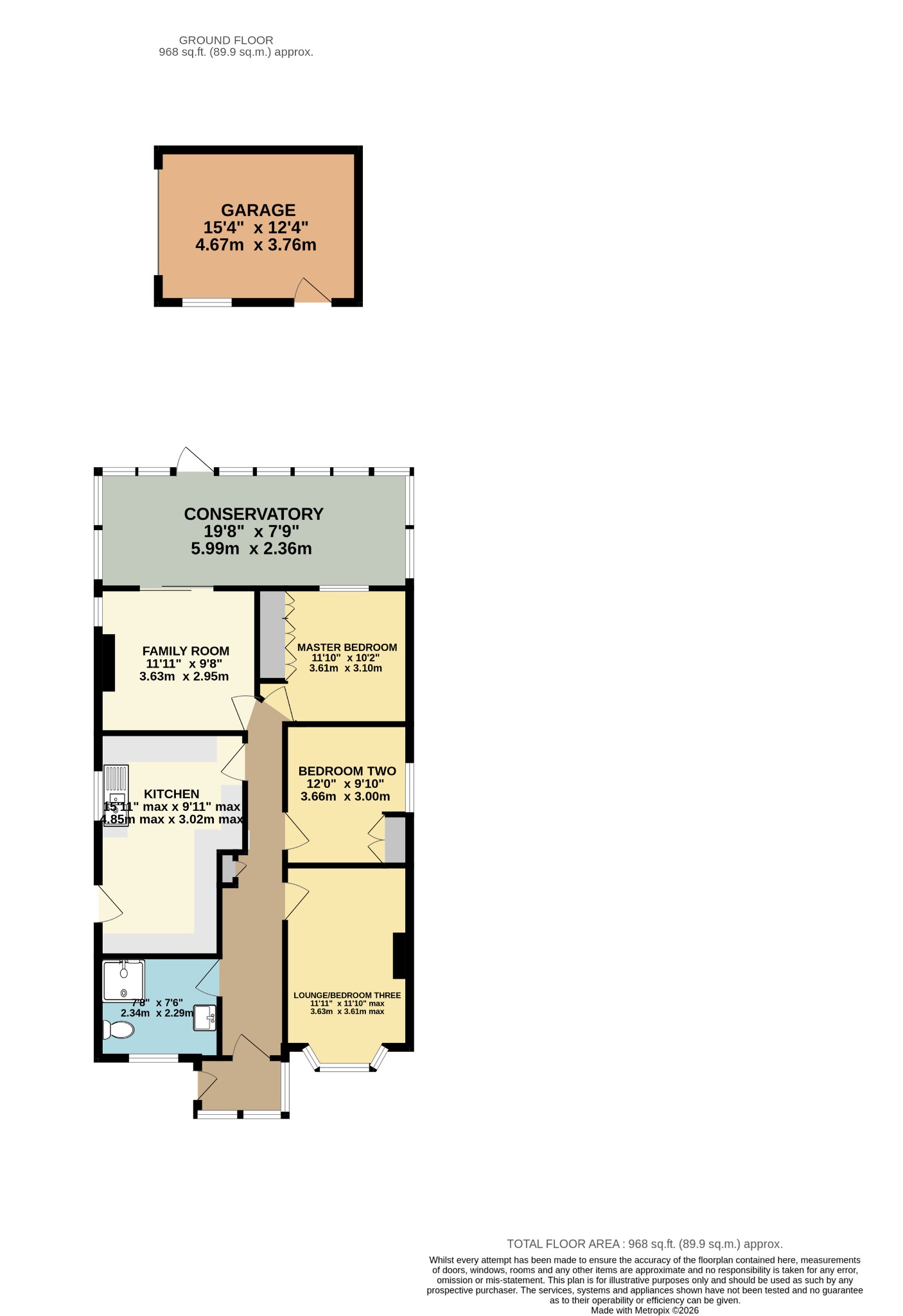
Welcome to Browning Avenue! Now, this is a bungalow that should not be missed! It is positioned on an enviable plot, with an impressive rear garden, block paved driveway to the front providing off-road parking, an additional side drive with access to the brick-built detached garage. Inside, you are welcomed by the porch that leads into the spacious entrance hall with doors leading to the primary rooms. The accommodation is versatile, and this home could be utilised as a three-bedroom property or a two-bedroom with an additional reception space. All bedrooms are very well proportioned and allow enough space for double beds. There is a neat sitting room to the rear of the bungalow with doors leading in to the conservatory which enjoys views across the gorgeous garden. The kitchen is well-equipped with space for all the necessary appliances and even offers space for a range-style cooker. There is a modern shower room with anti-slip flooring. As brilliant as the bungalow already is, there is so much potential to extend (stp) further and really create a space that suits your everyday lifestyle. We are pleased to offer this property with NO FORWARD CHAIN and viewing is highly recommended.
Approach
Block-paved driveway providing off-road parking.
Porch:
UPVC double glazed windows to side and front, door to:
Entrance Hall:
Coved and textured ceiling, storage cupboard, two radiators, doors to:
Lounge/Bedroom Three
11' 11" (3.63m) x 11' 10" (3.61m) max reducing to 10'9" (3.28m)::
Textured ceiling with picture rails, UPVC double glazed bay window to front, gas fire and surround, radiator.
Kitchen
15' 11" (4.85m) max x 9' 11" (3.02m) max reducing to 6'11" (2.11m)::
Coved and textured ceiling, UPVC double glazed window to side, UPVC double glazed door to side, range of wall, base and drawer units with work surface over, bowl and a half sink with drainer inset, range style cooker, space for washing machine and tumble dryer, integrated fridge and freezer, tiled floor.
Family Room
9' 8" (2.95m) x 11' 11" (3.63m)::
Textured ceiling with picture rail, UPVC double glazed window to side, gas fire with surround, sliding doors to:
Conservatory
7' 9" (2.36m) x 19' 8" (5.99m)::
Polycarbonate roof , UPVC double glazed windows to side and rear, doors to rear, laminated floor.
Master Bedroom
11' 10" (3.61m) x 10' 2" (3.10m)::
Textured ceiling, UPVC double glazed window to rear, radiator, built-in wardrobes.
Bedroom Two
12' (3.66m) x 9' 10" (3.00m)::
Textured ceiling, UPVC double glazed window to side, cupboard housing boiler, radiator.
Shower Room
7' 6" (2.29m) x 7' 8" (2.34m)::
Smooth ceiling with inset spotlights, UPVC double glazed window to front, WC, wash hand basin and large shower cubicle with rainfall-style shower, anti-slip flooring, heated ladder towel rail.
Garage
15' 4" (4.67m) x 12' 4" (3.76m)::
Brick-built detached garage to rear, up and over door, UPVC double glazed window and pedestrian door to side, power and light connected.
Garden:
Fence enclosed rear garden with double gate providing vehicular access to rear, patio seating area leading to neat lawn, flower and shrub borders, green house, shed.
Services
Mains gas, water, electricity, and drainage are connected. For mobile and broadband connectivity, please refer to Ofcom.org.uk. Please note that none of the services or appliances have been tested by Field Palmer.
Council Tax Band
Band C
Sellers Position
No Forward Chain
Offer Check Procedure
If you are considering making an offer for this property and require a mortgage, our clients will require confirmation of your status. We have therefore adopted an Offer Check Procedure which involves our Financial Advisor verifying your position.
Read less